タマタウン いわき泉町 3号棟

3,240万円

福島県いわき市泉町下川字谷地川110-5

常磐線「泉」駅徒歩30分

価格
3,240万円
間取り
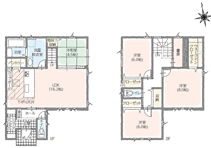
4LDK
土地面積
159.50㎡
所在地
福島県いわき市泉町下川字谷地川110-5
交通

常磐線」駅 徒歩30分

建物面積
110.96㎡
築年月
2025年3月(新築)

物件の特徴

  • バストイレ別

  • 室内洗濯機置場

  • 独立洗面台

セールスポイント

【未来リアルエステート】☆全3棟の3号棟☆泉町下川字谷地川☆泉小学校徒歩33分☆4LDK☆東側道路☆インナーバルコニー☆オール電化☆

ポイント

南側道路面す ウォークインクロゼット システムキッチン バス トイレ別 シューズボックス

担当者のコメント

下山田 利大

徒歩33分の場所にいわき市立泉小学校があります。和室の持つ、落ち着いた暖かい雰囲気が注目を集めてます。一生に一度のマイホーム探しは、ぜひ新築戸建てで。価格3,240万円のお住まいはこちらです。当社に住まい探しをサポートさせて下さい。実績と知識が豊富なスタッフが在籍しているので、きっと住まい探しのお役に立てることでしょう。

基本情報

販売戸数
3戸
総戸数
3戸
間取り / 詳細
4LDK
LDK 16.2帖/和室 4.5帖/洋室 8.0帖/洋室 6.0帖
向き
-
建物面積(坪数)
110.96㎡(33.56坪)
土地面積(坪数)
159.50㎡(48.24坪)
建ぺい率 /
容積率
70%/200%
築年月
2025年3月(新築)
土地権利
所有権
土地
(敷金 / 保証金)
- / -
建物構造
木造 / 2階建
傾斜地部分面積
-
路地状敷地
-
私道負担面積
-
セットバック
高圧線下面積
-
施工会社
タマホーム株式会社
用途地域
準工業
地目 / 地勢
宅地 / 平坦
接道状況
一方(南 公道 5.2m)
国土法届出要否
不要
都市計画
市街化区域
総区画数 /
販売区画数
3区画/3区画
現況
完成済み
その他
法令上の制限
-
取引態様
一般媒介
引渡し
相談
取引条件の
有効期限
2026年03月01日

設備条件

設備条件
  • 室内洗濯機置場 / バルコニー / 公営水道 / 浄化槽排水 / 電気有 / IHクッキングヒーター / システムキッチン / バス・トイレ別 / トイレ2ヶ所 / 独立洗面台 / ウォークインクロゼット
設備(その他)
    -

その他

物件番号
100703682
管理コード
-
建築確認番号
-
情報更新日
2026年02月15日
次回更新予定日
2026年03月01日
取扱会社
  • 未来 リアルエステート
  • 福島県いわき市植田町中央2丁目1-1 
  • TEL:0246-85-5201
  • 福島県知事 (2) 第003245号
  • (社)福島県宅地建物取引業協会会員

備考
徒歩40分の距離にいわき市立泉中学校があるのも魅力。令和7年3月完成の新築物件。足の不自由な人も楽に移動することができる平坦地です。不動産をお探しの方はいませんか。当社ではあなたの頼れる不動産探しのパートナーになれるよう、不動産情報を豊富に取り扱っております。ぜひご検討ください。

タマタウン いわき泉町の他の物件

  1. 1号棟

    4LDK (109.30㎡)

    3,240万円(98万円/坪)

周辺施設

  • ファミリマート泉下川の画像

    コンビニエンスストア

    ファミリマート泉下川

    400m(5分)

  • ヨークベニマル泉下川店の画像

    スーパー

    ヨークベニマル泉下川店

    1000m(13分)

  • いわき市立泉小学校の画像

    小学校

    いわき市立泉小学校

    2600m(33分)

  • いわき市立泉中学校の画像

    中学校

    いわき市立泉中学校

    3200m(40分)

支払いシミュレーション

月々の支払額
9.6
購入希望物件価格
万円
頭金
万円
金利
%
返済額(ボーナス1回分)
万円
返済期間

※ボーナスは自動で年2回分で計算されます。

近隣の物件

  1. 渡辺町田部薄作 中古戸建

    いわき市渡辺町田部字薄作

    4DK (88.60㎡)

    1,300万円

  2. 洋向台2丁目 中古一戸建て

    いわき市洋向台2丁目

    2LDK (128.88㎡)

    1,750万円

  3. 錦町須賀 中古戸建

    いわき市錦町須賀

    5LDK (174.72㎡)

    2,500万円

  4. 遠野町深山田 中古戸建

    いわき市遠野町深山田字鷹ノ巣

    5DK (130.00㎡)

    2,100万円

よく見られている物件

  1. 渡辺町田部薄作 中古戸建

    いわき市渡辺町田部字薄作

    4DK (88.60㎡)

    1,300万円

  2. 小名浜下神白字綱取 中古一戸建て

    いわき市小名浜下神白字綱取

    4LDK (131.86㎡)

    1,380万円

  3. 勿来町九面馬道 中古一戸建て

    いわき市勿来町九面馬道

    8LDK (180.77㎡)

    480万円

  4. 錦町須賀 中古戸建

    いわき市錦町須賀

    5LDK (174.72㎡)

    2,500万円

タマタウン いわき泉町

タマタウン いわき泉町

3,240万円

-

4LDK(110.96㎡)

お気軽にお問い合わせください

LINEからお問い合わせ 無料お問い合わせ

未来 リアルエステート

0246-85-5201

10:00~18:30

(休:火曜日)